Foto levereras av Google Street View och kan vara oprecist:
Industrilokal att hyra, Uppsala, Fullerö backe
Fullerö backe, Uppsala- Industrilokal att hyra
- 150 - 950 m2
Fullerö backe, Uppsala
- Industrilokal att hyra
- 150 - 950 m2
FÅ MER INFO OM LOKALEN
Du länkas till en annan portal, som kan kan kräva betalning eller skapande av en använderprofil
Industrilokal att hyra, Uppsala, Fullerö backe
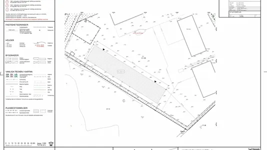
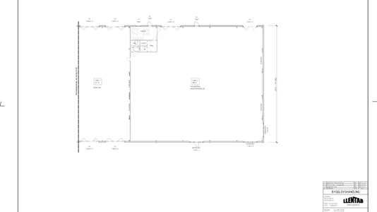
Produktion/Lager/Kontor 150-950 kvm.
Lokalen är lämpad för produktion, verkstad, handel och lager med industriport höjd 4,5 m. Öppen och pelarfri planlösning med plats för kontorsrum, omklädningsrum med dusch samt wc, personalpentry, med mera. 25 p-platser samt tillgång till lastkaj.
Lokalen omfattas av totalt ett plan: markplan med kontor, som även kan användas som butik och/eller servicemottagning. Byggnaden uppfördes 2025 och är genomgående modern och fräsch. Inredningen består av gråtonat golv, väggar och tak är ljusa och kompletteras av stora fönster, vilket ger generöst ljusinsläpp i lokalen.
[xxxxx] är ett attraktivt område i direkt anslutning till E4:an. Verksamheter som är representerade i området är bland annat olika bilrelaterade verksamheter (försäljning, drivmedel och verkstäder), hantverks- och byggrelaterade firmor samt logistikföretag.
Läs mer på
Hyra fastställs i samråd med hyresvärden.
Lokalen omfattas av totalt ett plan: markplan med kontor, som även kan användas som butik och/eller servicemottagning. Byggnaden uppfördes 2025 och är genomgående modern och fräsch. Inredningen består av gråtonat golv, väggar och tak är ljusa och kompletteras av stora fönster, vilket ger generöst ljusinsläpp i lokalen.
[xxxxx] är ett attraktivt område i direkt anslutning till E4:an. Verksamheter som är representerade i området är bland annat olika bilrelaterade verksamheter (försäljning, drivmedel och verkstäder), hantverks- och byggrelaterade firmor samt logistikföretag.
Läs mer på
Hyra fastställs i samråd med hyresvärden.
Information och data
Denna butikslokal, som även kan användas till Butikslokal eller Lager, ligger på Fullerö backe i Uppsala. Uppsala ligger i kommunen Uppsala, som ligger i Uppsala län. Lokalen är totalt 950 m2.